selection
prizes
list
projects
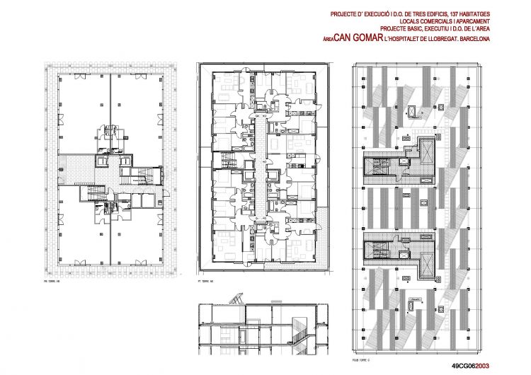
137 HABITATGES A CAN GOMAR. L’HOSPITALET de LLOBREGAT
49-CG