selection
prizes
list
projects
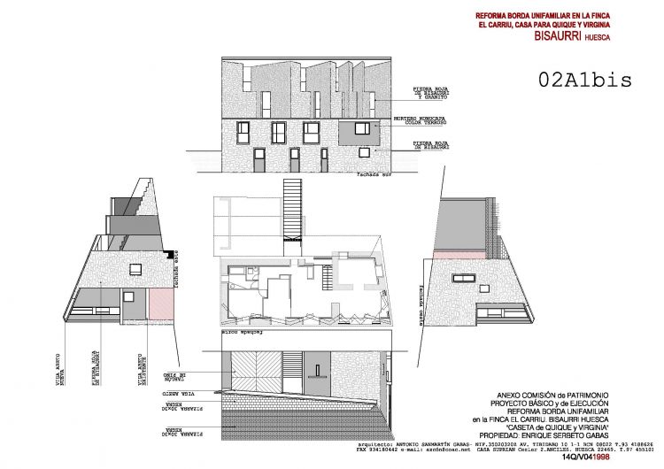
CASA PER A QUIQUE I VIRGINIA
14-QV